პროექტი
ბინის შერჩევა
სიახლეები
კონტაქტი
en
ru
პროექტები
მთავარი
პროექტის შესახებ
ბინის შერჩევა
პროექტის შესახებ
ბინის შერჩევა
მდებარეობა
გალერეა
ჩაბარების პირობები
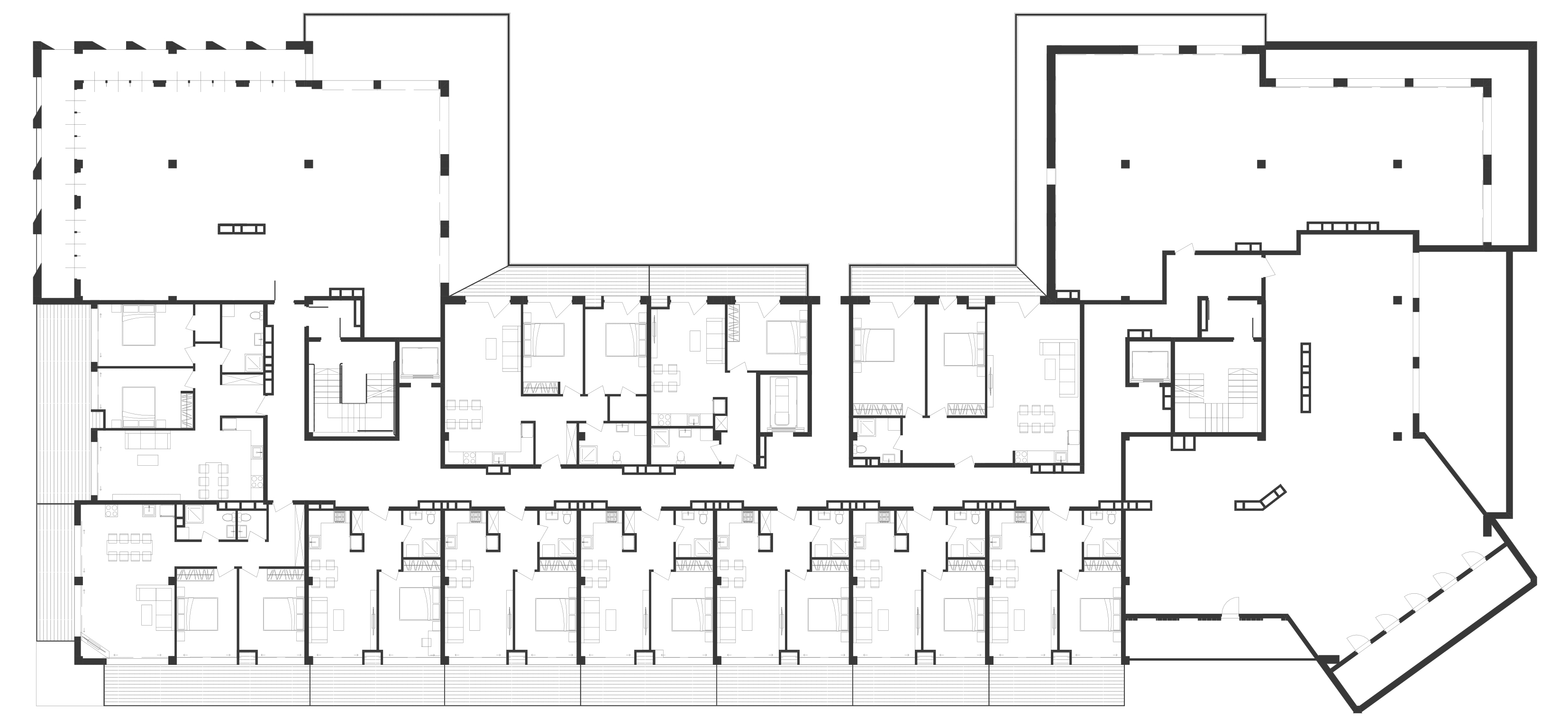
სართული
სართ
6
5
4
3
2
1
სართული 6
მთავარი
მთავარი
A ბლოკი
სართული 6
გაყიდული
დაჯავშნილი
ბინის ძიება
ბინის ძიება
აირჩიე ბლოკი
A ბლოკი
B ბლოკი
აირჩიე საძინებელი
1 საძინებლიანი
2 საძინებლიანი
3 საძინებლიანი
4 საძინებლიანი
ბინის ძიება
ყველა გასაყიდი ბინა